Agricultural Engineering Innovation Centre
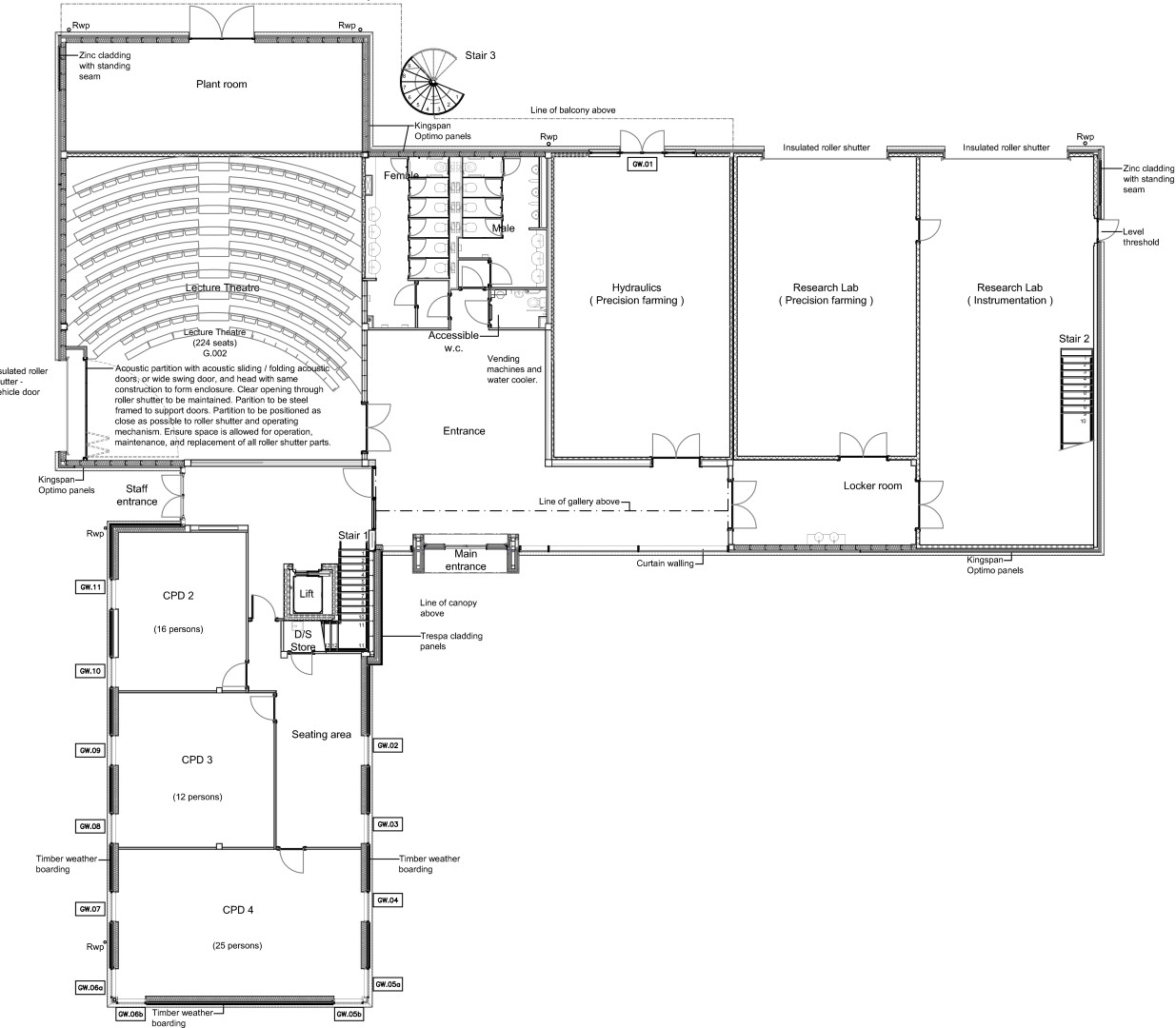
Located within the attractive rural setting of Harper Adams University Campus in Shropshire, Cartwright & Gross’ competition winning Agricultural Engineering Innovation Centre is home to the National Centre for Precision Farming (NCPF).
The NCPF provides the opportunity for farming and food sectors to develop new technology-based applications in agriculture to improve productivity and protect the environment.
This BREEAM rated “Very Good” building provides a unique mix of ‘clean’ engineering and teaching facilities including:
- Hydraulic labs
- Electronics/mechatronics lab
- Research lab for tractors and machines
- Staff accommodation
- Seminar and teaching rooms
- State-of-the-art lecture theatre with tractor stage








